高畠町深沼 中古住宅(古民家)

600万円

山形県東置賜郡高畠町大字深沼356

奥羽本線「高畠」駅徒歩47分

価格
600万円
間取り/建物面積
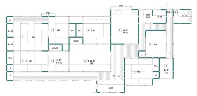
8K/222.25㎡
所在地
山形県東置賜郡高畠町大字深沼356
築年
1925年11月(築100年)
駐車
-
交通

奥羽本線高畠」駅 徒歩47分

基本情報

物件名
高畠町深沼 中古住宅(古民家)
価格
600万円
建物面積
222.25㎡
土地面積
632.59坪(2091.23㎡)
築年月
1925年11月(築100年)
総戸数
-
所在地
山形県東置賜郡高畠町大字深沼356
交通

奥羽本線高畠」駅 徒歩47分

詳細情報

設備条件
  • プロパンガス
  • 公営水道
  • 公共下水
設備(その他)
    -
駐車場/月額
-/-
土地権利
所有権
国土法届出
不要
用途地域
無指定
取引態様
専任媒介
現況
空家
引渡し
相談

高畠町深沼 中古住宅(古民家)で募集中の物件

  1. 8K (222.25㎡)

    600万円

高畠町深沼 中古住宅(古民家)

600万円

-

8K(222.25㎡)

お気軽にお問い合わせください

無料お問い合わせ

LIXIL不動産ショップ 本多建設

0238-21-5100

平日08:00~18:00(電話対応は24時間受付ております。)

(休:土・日曜日はご予約ください。)