寿4丁目事務所兼住宅 戸建(中古)

800万円

北海道釧路市寿4丁目2-22

根室本線「釧路」駅徒歩16分

価格
800万円
面積
-(-)
所在地
北海道釧路市寿4丁目2-22
築年
1992年7月(築33年)
駐車
空有
交通

根室本線釧路」駅 徒歩16分車5分 1.2km

物件の特徴

  • バストイレ別

  • 独立洗面台

セールスポイント

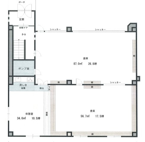
中心部に近い住宅地です。車庫・倉庫付事務所兼住宅。駐車場は屋外5台・屋内3台有ります。1階は車庫・倉庫・休憩室が有ります。2階は大空間事務室・小会議室・応接室が有ります。3階は大空間4LDKです。

担当者のコメント

多少の傷みは有りますが補修して頂ければまだまだ使えます。内部残置物が有りますが引渡までに処分します。

基本情報

物件名
寿4丁目事務所兼住宅 戸建(中古)
価格
800万円
管理費
-
修繕積立金
-
間取り/詳細
-
建物面積
-
バルコニー面積
-
種別/構造
事務所/鉄骨造
築年月
1992年7月(築33年)
所在階
-/3階建
方角
-
土地権利
所有権
借地料
-
用途地域
工業
総戸数
-
所在地
北海道釧路市寿4丁目2-22
交通

根室本線釧路」駅 徒歩16分車5分 1.2km

その他条件

詳細情報

設備条件
  • ファミリー向け / 都市ガス / 公営水道 / 公共下水 / 電気有 / ビルトガレージ / ガスコンロ / コンロ2口以上 / コンロ3口 / バス・トイレ別 / 洗面台 / 洗髪洗面化粧台 / 男女トイレ別 / 浴室1坪以上 / 独立洗面台 / 
設備(その他)
    -
駐車場/月額
空有/ 屋外5台屋内3台
土地権利
所有権
国土法届出
不要
用途地域
工業
戸数
- / -
管理形態
-
管理員の勤務形態
-
管理会社
-
取引態様
一般媒介
現況
空家
引渡し
相談
物件番号
98979485
情報更新日
2026年02月07日
更新予定日
2026年02月21日
備考
国道38号に近くどこへ行くにも便利です。くしろバスの寿4丁目停まで130m徒歩2分です。中央小・北中にも近い好立地です。

  • 釧路市立中央小学校の画像

    小学校

    釧路市立中央小学校

    743m(10分)

  • 釧路市立北中学校の画像

    中学校

    釧路市立北中学校

    1003m(13分)

  • ことぶき認定こども園の画像

    その他

    ことぶき認定こども園

    377m(5分)

  • なごやか亭新川店の画像

    ファミリーレストラン

    なごやか亭新川店

    1444m(19分)

  • セブンイレブン 釧路海運3丁目店の画像

    コンビニエンスストア

    セブンイレブン 釧路海運3丁目店

    545m(7分)

近隣の物件

  1. ◎春採2丁目 売地

    釧路市春採2丁目

    - (183.00㎡)

    50万円

  2. ◎釧路市材木町 中古 下宿 寮 兼 住居

    釧路市材木町

    - (443.34㎡)

    900万円

  3. ◎釧路市貝塚4丁目 土地

    釧路市貝塚4丁目

    - (190.00㎡)

    90万円

  4. ◎釧路市駒場町 中古住宅

    釧路市駒場町

    4LDK (81.81㎡)

    332万円

寿4丁目事務所兼住宅 戸建(中古)

寿4丁目事務所兼住宅 戸建(中古)

800万円

-

-(-)

お気軽にお問い合わせください

無料お問い合わせ

LIXIL不動産ショップ 伊藤建業

0154-52-0368

9:00-18:00

(休:日・祝)